2-комнатная квартира
Тип
Предложение от застройщика
Адрес
МО, Дмитровский г.о., деревня Курово, дом 111
Цена:
8 200 000 ₽
Площадь
59,6 кв.м
Комнат
Две
Год постройки
2021
Описание:
ПРОДАЖА ОТ ЗАСТРОЙЩИКА: ИПОТЕКА С ГОСПОДДЕРЖКОЙ
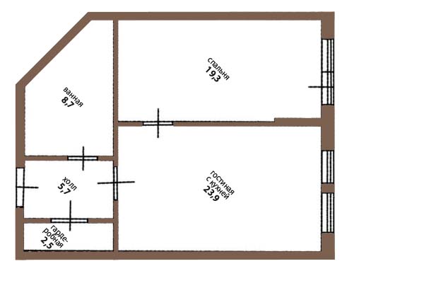
Двухкомнатная квартира площадью 59,4 м2 на 2-м этаже малоэтажного дома, расположенном на территории отельного комплекса Fresh Wind Hotel. Дом сдан в эксплуатацию.
Современная архитектура, большая и ухоженная территория, близость горнолыжных курортов Сорочаны и Яхрома. В пешей доступности: отель Свежий Ветер с подогреваемыми бассейнами, СПА комплексом и русской баней; боулингом и кинотеатром, прокат квадроциклов и снегоходов; рестораны и бары. Горнолыжный курорт Сорочаны, гольф-клуб, Аквапарк Кико на Яхромском водохранилище, конные прогулки в X-Land, авиаклуб с воздушными шарами, картинг и мотоспорт делают поселок одним из самых привлекательных мест для проживания и отдыха в Подмосковье. Рядом с поселком, на расстоянии 3...6 км расположены Яхрома и Дмитров со всей городской инфраструктурой: детские сады и школы; поликлиники и больницы; торговые комплексы и магазины.
Классическая планировка квартиры с просторными помещениями правильных пропорций и высокими потолками более 3-х метров. Окна на северо-восток, во внутренний двор в сторону леса. В квартиру заведены все коммуникации: вода, канализация, электричество и интернет; газ. Установлено газовое оборудование: котел и газовая плита. Установлены все приборы индивидуального учета. Возведены все межкомнатные перегородки.
Покупая квартиру в отельном поселке, вы становитесь резидентом отельного комплекса с правом пользования всей территорией и инфраструктурой. На платные услуги гостиничный комплекс Fresh Wind Hotel предоставляет скидку в размере 25%. На посещение бассейнов и СПА комплекса: 50 % от стоимости абонементов.
Тарифы и скидки, условия пользования инфраструктурой отельного комплекса предоставляются администрацией Fresh Wind Hotel
Коммуникации и удобства:
- канализация - центральная
- водоснабжение - центральное
- газ - магистральный
- отопление - автономное газовое
- электроснабжение: - 15 кВт 400 V
- аварийный генератор
- парковка
- охрана
- видеонаблюдение
- патрулирование
- детская площадка
Планировка:

Расположение:
Другие варианты:
Квартиры

МО, Дмитровский г.о., деревня Курово, дом 111
55,2 кв.м
Одна
2021
7 500 000 ₽
Квартиры

МО, Дмитровский г.о., деревня Курово, дом 111
59,6 кв.м
Две
2021
8 200 000 ₽








